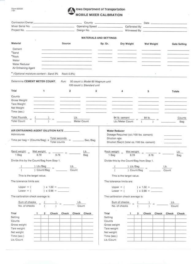
****THIS IS A NEW APPENDIX. – PLEASE READ CAREFULLY.****

 

CALIBRATION FORM #820020